Fachhandel für Heimwerker & Profis
Riesiges Sortiment
Maximal rabattiert
Nur Qualitätsprodukte
Expertenberatung
Die Produktabbildung kann u.a. farblich vom realen Produkt abweichen.
Bild öffnenhager Zähleranschlusssäule 205, univers Z, 1 Zählerplatz, eHZ, 5-polig, Basis, APZ
Zähleranschlusssäule, Schutzart IP 44, als Basissäule inklusiv Eingrabsockel, aus glasfaserverstärktes Polyester FS 833.5 nach DIN EN 14598. Die Zähleranschlusssäule erfüllt die Anforderungen der DIN VDE 0603-1 in Verbindung mit der DIN VDE 0603-2-1.
Weiterhin ist die Anlage basierend auf den geltenden Anwendungsrichtlinien der VDE-AR-N 4100:2019-04 inkl. der zugehörigen Berichtigung VDE-AR-N 4100 Ber 1:2019 aufgebaut. Durch Zusatzbauteile wird die Basissäule zu einer anschlussfertigen Zähleranschlusssäule des entsprechenden VNB ausgebaut.
Profiliertes Gehäuse im Rippendesign. Tür mit Öffnungswinkel 180 Grad bei freiem Stand und 90 Grad bei angereihten Gehäusen. Rechte Tür ist aushängbar. Schließung mit Schwenkhebel und Drei-Punkt-Basküleverschluss mit 1 bzw. 2 Profilhalbzylindern. Eingebauter Zylinder unten mit gleichschließender Serie. Ein zweiter Schließzylinder (z.B. aus VNB-Schließanlage) kann oben nach Entfernen des Vierkantverschlusses eingebaut werden. Wenn kein zweiter Profilhalbzylinder eingebaut wird, muss die zweite obere Öffnung mit einem Blindverschluss bestückt werden.
Die Belüftung erfolgt über labyrinthartig ausgebildete Lüftungskanäle, verhindert das Eindringen von Fremdkörpern und ist stochersicher. Zähleranschlusssäulen sind gebaut nach technischer Richtlinie: Anschlussschränke im Freien/Anschluss von ortsfesten Schalt- und Steuerschränken und Zähleranschlusssäulen an das Niederspannungsnetz des VNB.
Der Einbau besteht aus schutzisolierten Zählerfeldern nach DIN VDE 0603-1 (Funktionsflächen) für Zähler. Zählerplätze sind vorgerichtet für eine IP54 Abdeckung. Eingrabsockel und Zähleranschlusssäule bilden eine Einheit. Ein Bodenrost ist empfohlen. Zur Betauungsvermeidung ist der Sockel bis zur Höhe der Kabelbefestigungsschiene innen mit Sockelfüller aufzufüllen.
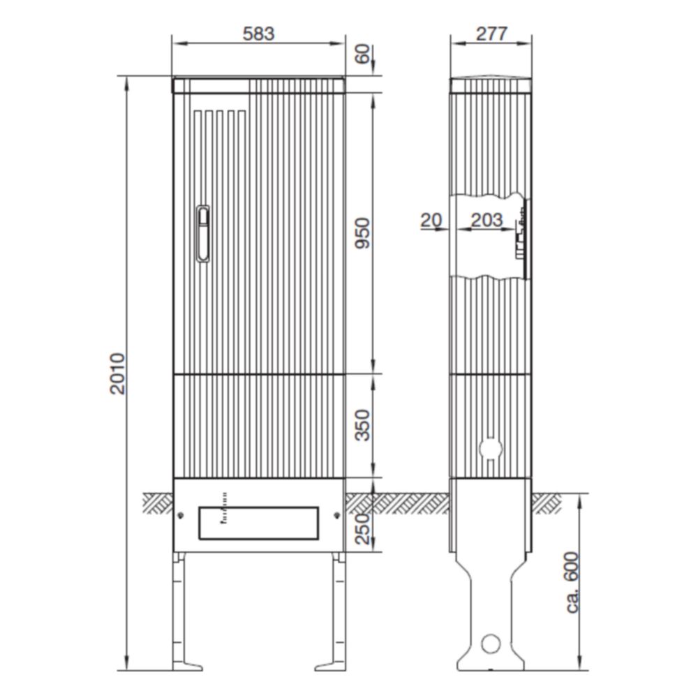
Höhe: 2010 mm
Breite: 583 mm
Tiefe: 277 mm
Anzahl Felder: 2
IP-Klasse (Ingress Protection): IP44
Schutzklasse: Schutzklasse II
Montageart: teilversenkt
Anzahl Schranktüren: 1
Anzahl der Schlösser: 2
Ausführung des Handgriffes: Schwenkhebelgriff
Farbe: Lichtgrau
RAL Nummer: 7035
Fabrikat : Hager
Artikel : ZAS205BE15A
Weiterlesen
Hager – Elektrotechnik aus einer Hand
Hager bietet ein umfangreiches Sortiment rund um die Elektroinstallationen für Wohn‑, Gewerbe‑ und Zweckbauten mit höchsten Ansprüchen an Sicherheit, Funktion und Design. Mit Lösungen für die Energieverteilung und Zählerplatzsysteme, Schalt‑ und Schutzgeräte, sowie komplette Verteilersysteme und Stromverteilung bis zu 4.000 A sind Sie für alle Belastungen und Einsatzbereiche versorgt. Ergänzt wird das durch Leitungsführungs‑ und Raumanschlusssysteme, wie Brüstungskanäle, Decken‑ und Bodenanschlusssäulen oder Multimedia‑Einbaugeräte, die eine saubere und intelligente Infrastruktur für Strom, Daten und Kommunikation ermöglichen.
Dazu kommen intelligente Steuerung und Automatisierung mit KNX‑Systemen, Gebäudesteuerung, Sicherheits‑ und Türkommunikationstechnik sowie Ladeinfrastruktur für Elektromobilität. Hager verbindet Innovation und Praxis mit normgerechter Qualität, maßgeschneiderter Funktionalität und hochwertigem Design, um für jedes Projekt – ob Neubau oder Modernisierung – passgenaue und zukunftssichere Elektrolösungen zu bieten.
Technische Daten
Hersteller | hager |
Anschluss-/Steckertyp | Sammelschiene |
Anschluss-/Steckertyp NAR SG/TRE Feld | Sammelschiene |
Anschlussquerschnitt Zählerausgangsleitung | 10-10 mm² |
Anschlussquerschnitt Zählerzugangsleitung | 10-10 mm² |
Anzahl 3-Punkt-Aufnahmen für SG/TRE | 0 |
Anzahl der Leerplätze | 0 |
Anzahl der RJ45 Anschlüsse | 0 |
Anzahl der Schlösser | 2 |
Anzahl Felder | 2 |
Anzahl Reihen | 7 |
Anzahl Sammelschienendurchführungen | 0 |
Anzahl Schranktüren | 1 |
Anzahl Verteilerfeld | 1 |
Anzahl Zählerfeld (Einbausatz) | 1 |
Anzahl Zählerplätze <=63 A | 1 |
Anzahl Zählerplätze >=80 A | 0 |
Art der Sammelschieneneinspeiseklemme | Bis 16 mm² |
Artikelnummer | HAGER-ZAS205BE15A |
Ausführung des Handgriffes | Schwenkhebelgriff |
Breite | 583 mm |
Breite/Dicke Sammelschiene | 5 - 5 mm |
EAN-13 | 3250611073338 |
Farbe | Lichtgrau |
Gewicht | 40 kg |
Höhe | 2010 mm |
Höhe Sammelschiene | 12 mm |
IP-Klasse (Ingress Protection) | IP44 |
Montageart | teilversenkt |
Multimedia Feld Bereich | Ohne |
Netzform | TN-S |
Polanzahl | 5 |
RAL Nummer | 7035 |
Schutzklasse | Schutzklasse II |
Tiefe | 277 mm |
WEEE-Nr. | 23692311 |
© Copyright by Hager Vertriebsgesellschaft mbH & Co. KG, Zum Gunterstal, Blieskastel, Deutschland. Die Schriftwerke, Bilder, Videos sind urheberrechtlich geschützt.
Bewertungen
Bewertungen zertifiziert mit dem eKomi-Gütesiegel
